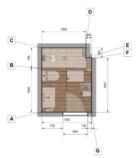
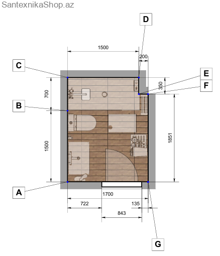
Müasir Hamam Dizaynı - 2,2x1,7(m)
Layihə müasir dizayn prinsiplərinə əsaslanaraq yaradılıb. Burada sadəlik, funksionallıq və zəriflik əsas xətləri təşkil edir.
Divar və döşəmədə açıq rəngli keramika plitələrdən istifadə olunaraq məkan daha geniş və işıqlı görünür. Döşəmə hissəsində taxta naxışlı vinil örtük seçilib ki, bu da interyerə isti və ev abu-havası qatır.
Sanitar avadanlıqlar minimal xətləri və qara mat detallar ilə vurğulanıb. Kompakt unitaz, müasir çanaqlı tualet masası və divara quraşdırılmış qarışdırıcılar otağa həm estetik gözəllik, həm də rahatlıq bəxş edir.
Dizaynda yumşaqlıq yaratmaq üçün açıq bej rəngli pambıq vanna otağı xalçası istifadə olunub. Bu element keramika və vinil materialların sərinliyini balanslaşdıraraq məkanın ümumi ab-havasını tamamlayır.
Kuryerlə
Çatdırılma qiyməti Bakı şəhəri üçün göstərilib.
Əgər kənar əraziyə və ya rayonlara çatdırma lazımdırsa, lütfən, (055) 263 69 00 nömrəsi ilə əlaqə saxlayın. Sifarişin həcminə görə, pulsuz çatdırma xidmətimizdən yararlana bilərsiniz.
GÜVƏN: Bizim mağazadan birbaşa və ya online aldığınız santexnika mallarını 14 gün ərzində dəyişdirə, və ya qaytara bilərsiniz;
ÖDƏNİŞ: Aldığınız məhsullar Sizə çatdırıldıqdan və Siz sifariş etdiyiniz santexnika mallarının tam məlumatlara uyğun olduğunu yoxladıqdan sonra ödəniş edirsiniz;
ZƏMANƏT: Azərbaycana gətirdiyimiz və distribütoru olduğumuz GİCORA, UZAY, DuraBagno, TESKA, DURA, FRAP, FRUD, GAPPO, DUXXA, FERRO brendlərinin santexnika mallarını Bakıda hansı mağazadan almağınızdan asılı olmayaraq, zavod səhvi ucbatından nasazlıq baş verərsə, biz onu zavodun təyin etdiyi zəmanət müddətində dəyişirik.








