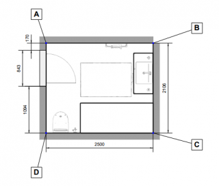
Qırmızı və Qara Hamam Dizaynı - 2,1 x 2,5 (m)
Bu qırmızı və qara hamam dizaynı dramatik və lüks estetika təmin edir, qırmızı parlaq divar plitələri və qara naqışlı plitələrlə zənginləşdirilmişdir. Dairəvi LED işıqlı güzgü yumşaq işıqlandırma yaradır, qara isitici radiator və taxta tonlu yumaqüstü dolabı funksionallığı artırır. Şüşə ekranla qapalı vanna, qara metall armatürlər və ağ divar tualeti klassik elementləri müasir toxunuşla birləşdirir. Qara yer plitələri və ağ xalça isə kontrastlı və rahat atmosfer formalaşdırır. 3D renderlərlə təqdim olunan bu model cəsarətli içlər axtaranlar üçün ideal seçimdir.
Kuryerlə
Çatdırılma qiyməti Bakı şəhəri üçün göstərilib.
Əgər kənar əraziyə və ya rayonlara çatdırma lazımdırsa, lütfən, (055) 263 69 00 nömrəsi ilə əlaqə saxlayın. Sifarişin həcminə görə, pulsuz çatdırma xidmətimizdən yararlana bilərsiniz.
GÜVƏN: Bizim mağazadan birbaşa və ya online aldığınız santexnika mallarını 14 gün ərzində dəyişdirə, və ya qaytara bilərsiniz;
ÖDƏNİŞ: Aldığınız məhsullar Sizə çatdırıldıqdan və Siz sifariş etdiyiniz santexnika mallarının tam məlumatlara uyğun olduğunu yoxladıqdan sonra ödəniş edirsiniz;
ZƏMANƏT: Azərbaycana gətirdiyimiz və distribütoru olduğumuz GİCORA, UZAY, DuraBagno, TESKA, DURA, FRAP, FRUD, GAPPO, DUXXA, FERRO brendlərinin santexnika mallarını Bakıda hansı mağazadan almağınızdan asılı olmayaraq, zavod səhvi ucbatından nasazlıq baş verərsə, biz onu zavodun təyin etdiyi zəmanət müddətində dəyişirik.




