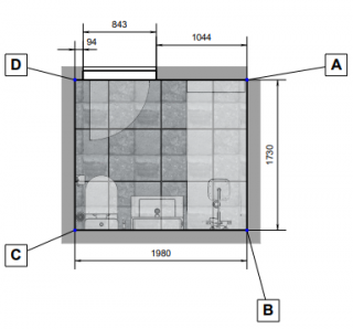
Minimal Hamam Dizaynı 1,98 x 1,73 (m)
Bu minimal hamam otağı dizaynı, zəriflik və funksionallığı birləşdirir. Qri daş lövhələri və geometrik mozaik detallarla bəzədilmiş divarlar, işıqlı ayna, ağ vanna və lavabo ilə şık bir görünüş yaradır. Otağın təmiz və sade estetikası, işıqlı tavan və praktik saxlama rafı ilə tamamlanır. Bu dizayn, həm gündəlik istifadəyə uyğun, həm də estetik baxımdan cəlbedici bir məkan təqdim edir.
Kuryerlə
Çatdırılma qiyməti Bakı şəhəri üçün göstərilib.
Əgər kənar əraziyə və ya rayonlara çatdırma lazımdırsa, lütfən, (055) 263 69 00 nömrəsi ilə əlaqə saxlayın. Sifarişin həcminə görə, pulsuz çatdırma xidmətimizdən yararlana bilərsiniz.
GÜVƏN: Bizim mağazadan birbaşa və ya online aldığınız santexnika mallarını 14 gün ərzində dəyişdirə, və ya qaytara bilərsiniz;
ÖDƏNİŞ: Aldığınız məhsullar Sizə çatdırıldıqdan və Siz sifariş etdiyiniz santexnika mallarının tam məlumatlara uyğun olduğunu yoxladıqdan sonra ödəniş edirsiniz;
ZƏMANƏT: Azərbaycana gətirdiyimiz və distribütoru olduğumuz GİCORA, UZAY, DuraBagno, TESKA, DURA, FRAP, FRUD, GAPPO, DUXXA, FERRO brendlərinin santexnika mallarını Bakıda hansı mağazadan almağınızdan asılı olmayaraq, zavod səhvi ucbatından nasazlıq baş verərsə, biz onu zavodun təyin etdiyi zəmanət müddətində dəyişirik.
  							 
            





